Produkt introduksjon
Lysskinnen i GB -standarden refererer til stål for jernbanespor med en teoretisk vekt på 8 kg til 30 kg per meter, og dekker åtte spesifikasjoner på 8 kg, 9 kg, 12 kg, 15 kg, 18 kg, 22 kg, 24 kg og 30 kg. Skinnen er laget av karbonstål av høy kvalitet eller stål med lavt legering og dannet av varm rulling. Jernbanestørrelsen, kjemisk sammensetning og mekaniske egenskaper er alle i samsvar med relevante nasjonale standarder som GB\/T 11264.
Blant dem brukes 8-12 kg\/m spesifikasjonen for det meste i lavvolumscenarier som midlertidige byggeveier og interne transportspor i lager; 18-24 kg\/m spesifikasjonen er egnet for jernbanegrener i gruveområder og skogområder; 30 kg\/m spesifikasjonen brukes ofte som spormateriale for urbane lette jernbanegrener og industriparkfraktlinjer. Utformingen av jernbanehodet, jernbane midjen og jernbane bunnen samsvarer med hjulskinnskraftsprinsippet. Gjennom den matchende bruken med sviller og festemidler gir det et stabilt og pålitelig banestiftelse for middels og lavt volum jernbanetransport.

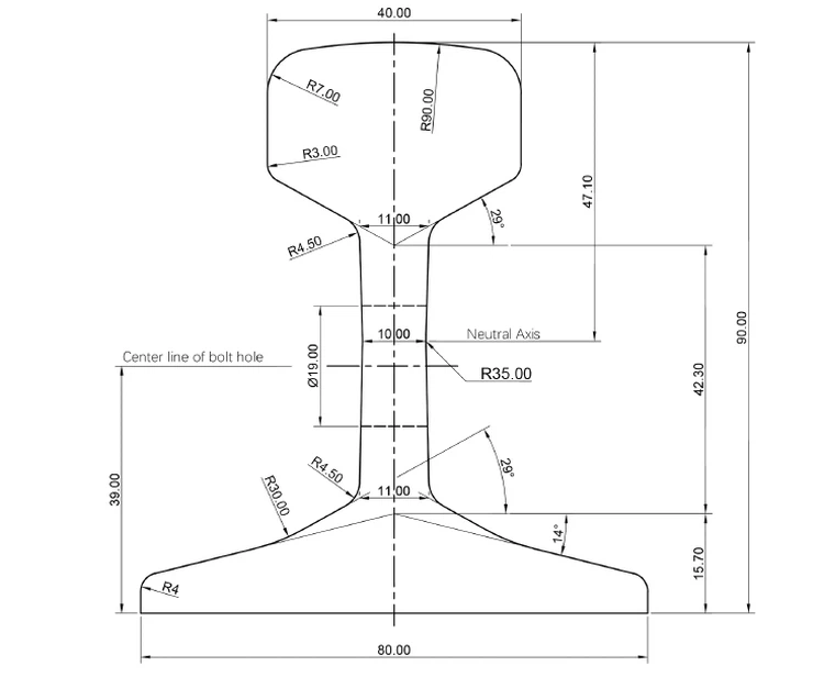
Den teoretiske vekten av P18 jernbanelysstålbane er omtrent 18 kg per meter. Når det gjelder størrelse, er høyden vanligvis 90 mm, bunnbredde er 80 mm, og hodebredden er 40 mm. Denne størrelsesdesignen sikrer ikke bare en viss styrke, men tar også hensyn til fleksibiliteten og bekvemmeligheten ved sporing. For eksempel, sammenlignet med tunge skinner, gjør den lettere vekt det lettere å bære og installere i noen scenarier for manuell konstruksjon eller liten mekanisk assistert konstruksjon, noe som reduserer konstruksjonsvanskeligheten og arbeidsintensiteten. Den moderate høyden, bunnbredden og hodebredden kan tilpasse seg vanlige sovende størrelser for å sikre stabiliteten i sporsystemet.
Det ofte brukte materialet for P18 lysskinne er 55Q, som er et middels karbonstål. Karboninnholdet handler om 0. 55%. Karbonelementet i stål spiller en rolle i å forbedre styrke, hardhet og slitasje.
Produktspesifikasjoner

Produktemballasje og levering
Standardemballasje- og transportplanen for GB 18 kg lysskinner må vurdere produktegenskapene og transportkravene fullt ut for å sikre varens sikkerhet og integritet under sirkulasjonen. Når det gjelder emballasje, er den vanligste metoden å bruke stålbelter med høy styrke for pakking og emballasje. Bakkavstanden styres vanligvis mellom 1. 2-1. 5 meter, og vekten til hver bunt holdes innenfor et rimelig område på 3-5 tonn. Dette kan sikre transportsikkerhet og lette lasting og lossing av driften.
For å forbedre beskyttelseseffekten, installeres spesielle antikollisjon hjørnevakter i begge ender av skinnene for å forhindre støt og skade under transport.



Gnee Rail fokuserer på batchforsyningen av GB -standardlysskinner og har en sterk forsyningskapasitet. Produktspesifikasjonene er komplette, alt fra 8 kg\/m til 30 kg\/m, for å oppfylle forskjellige bærende krav. Den standardiserte produksjonsprosessen blir vedtatt for å sikre stabil og pålitelig produktkvalitet. Det profesjonelle salgsteamet kan gi den beste anskaffelsesplanen i henhold til kundebehov og støtte langsiktige samarbeidsavtaler. Det perfekte logistikksystemet kan ordne container- eller bulktransport for å sikre levering av tid på store volum. Den strenge kvalitetsinspeksjonsprosessen sikrer at hver gruppe produkter oppfyller nasjonale standarder.





Populære tags: P18 Railway Light Steel Rail, China P18 Railway Light Steel Rail Produsenter, leverandører, fabrikk






